进门就被吸引的家,也太好住了吧
时间:2020-09-16 09:06:01
来源:互联网
阅读:-
本文摘要:位于胡志明市的复式公寓,面积200平米,设计师决定用形状来定义不同区域。屋主对现代主义建筑十分偏爱,设计师参考了美国建筑师路易斯·卡恩(Louis Kahn)的作品,用了极具标志性的几何开口元素。同时
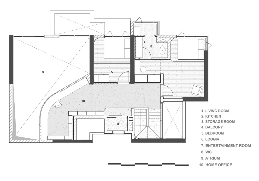
位于胡志明市的复式公寓,面积200平米,设计师决定用形状来定义不同区域。
屋主对现代主义建筑十分偏爱,设计师参考了美国建筑师路易斯·卡恩(Louis Kahn)的作品,用了极具标志性的几何开口元素。
同时融合了越南热带生活环境和本土语言,运用了在西贡很流行的水磨石、水泥等元素。
公寓房间的所有门道和入口都被制成拱形。
从起居室拐角处伸出来的弯曲空间,被一个巨大的舷窗打断,内部是公寓高层的书房。
正下方的厨房岛台、地面都用了大理石水磨石,形成一个区块,和餐厅区域的水泥地面分割开来。
休息室、卧室、洗手间……所有区域都有曲线和几何元素,整栋公寓都有着浓郁的现代主义色彩。
(正文已结束)
推荐阅读:贵州之窗
免责声明及提醒:此文内容为本网所转载企业宣传资讯,该相关信息仅为宣传及传递更多信息之目的,不代表本网站观点,文章真实性请浏览者慎重核实!任何投资加盟均有风险,提醒广大民众投资需谨慎!
上一篇:没有了
